武汉塞尚世纪设计公司 136-6713-6122

武汉包装设计(128平黑白现代风干净利落,一抹原木色设计给客厅加入一份温暖)现代简约风格黑白灰衣柜图片,

发布者:147小编 时间:2023-03-16

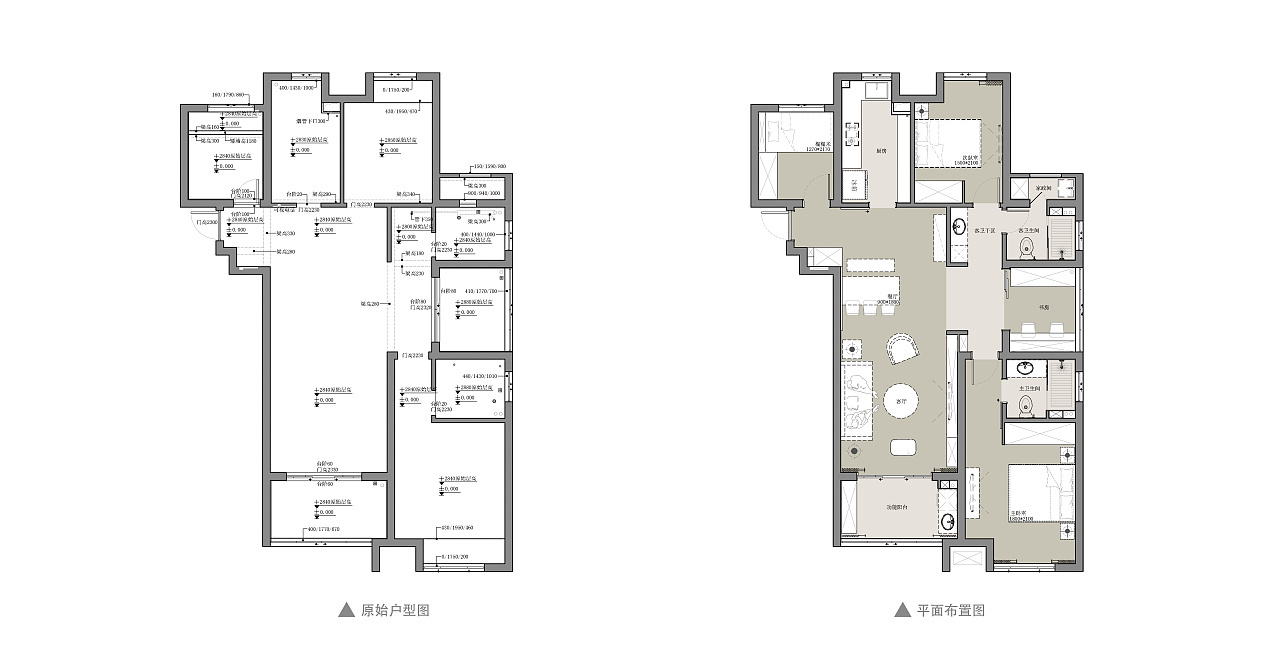
128平现代风四居室,装修完效果非常好,不仅能满足日常生活需求,更能限度的利用房屋面积。

黑白的理性美学,同样是整洁有序的,有条不紊的排序或是规整化的格局,在视觉上给人干净利落的印象,又弱化了整齐划一所带来的单调感。

不锈钢块面的电视背景墙,同样使这一个理性的黑白交织的空间增加一点刚性的质感,机理所呈现的不同味道,结合光影的互动,营造一个纯粹的不附加任何雕饰的客厅空间。

次卧室同样保留了最能够让我们感受到安静的状态。

主卧空间的处理更趋于简洁,设计师只让光线与时间存在,其他无论颜色与材质在这里都不重要了,他们都是为了让这里更祥和安静,只留下能让我们最直观的感官感受到温暖的元素。

卫生间的材质也更多采用了黑白对比的方式,不同的材质会体现不同的感受,洁净的白,素雅的灰,沉着的黑,用温润的木质台盆柜点缀,既融合了白色的空间,又契合了安静的氛围

餐厅用一块黑色的背景强调了餐厅空间的区域性,也跟不锈钢的电视背景墙在整个客餐厅空间错落的相呼应,材质的交织,光线的互动,机理的叠影。原木色椅背结合金属腿的餐椅给这个纯净的位置加入一份温暖

厨房也使用了纯粹的白色,结合地面的水磨石地砖,在自然的光影与机理当中感受生活的烟火味道。

书房的长虹玻璃移门,保证了空间的通透性,也让这种质感成为整个空间过渡的衔接。从客餐厅到卧房的过渡,从放松到安静的过渡,从安心到静谧的过渡。

各个空间户型方正,方便室内家具布置;全明户型,各部分空间均有窗,可保证整体空间采光和通风,居住舒适度好